Search Tesla Megapack Publications search was updated real-time via Filemaker on:

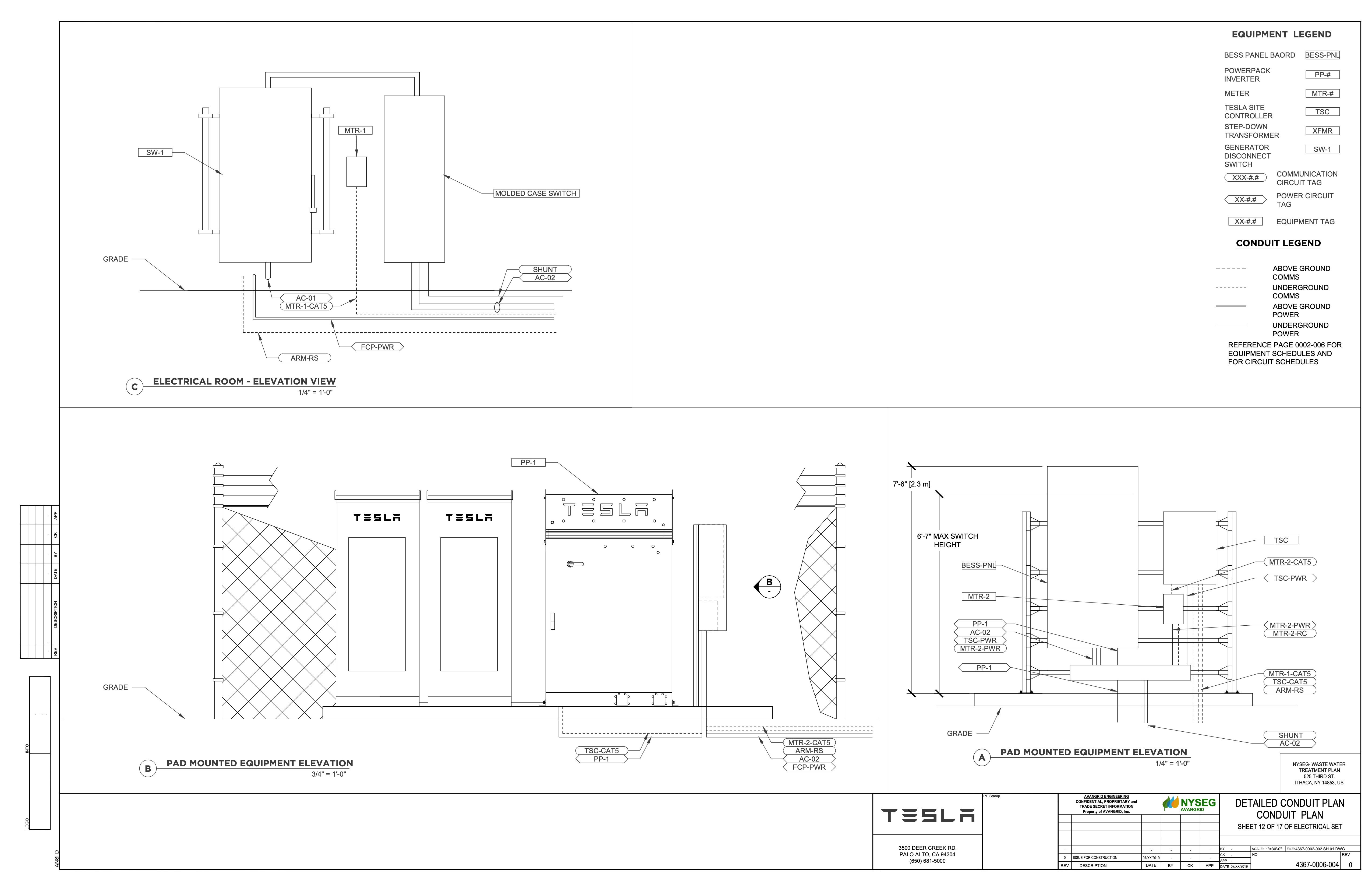
Page | 003 3500 DEER CREEK RD. PALO ALTO, CA 94304 (650) 681-5000 DETAILED CONDUIT PLAN CONDUIT PLAN SHEET 12 OF 17 OF ELECTRICAL SET REV 4367-0006-004 0 PE Stamp EQUIPMENT LEGEND BESS PANEL BAORD POWERPACK INVERTER METER TESLA SITE CONTROLLER STEP-DOWN TRANSFORMER GENERATOR DISCONNECT SWITCH XXX-#.# XX-#.# XX-#.# EQUIPMENT TAG CONDUIT LEGEND ABOVE GROUND COMMS UNDERGROUND COMMS ABOVE GROUND POWER UNDERGROUND POWER REFERENCE PAGE 0002-006 FOR EQUIPMENT SCHEDULES AND FOR CIRCUIT SCHEDULES - SCALE: 1"=30'-0" - NO. BY CK APP - DATE 07/XX/2019 POWER CIRCUIT TAG BESS-PNL PP-# MTR-# TSC XFMR SW-1 COMMUNICATION CIRCUIT TAG SW-1 MTR-1 MOLDED CASE SWITCH GRADE SHUNT AC-02 AC-01 MTR-1-CAT5 ARM-RS FCP-PWR C ELECTRICAL ROOM - ELEVATION VIEW 1/4" = 1'-0" PP-1 B - GRADE B PAD MOUNTED EQUIPMENT ELEVATION 3/4" = 1'-0" TSC-CAT5 PP-1 MTR-2-CAT5 ARM-RS AC-02 FCP-PWR 7'-6" [2.3 m] 6'-7" MAX SWITCH HEIGHT BESS-PNL MTR-2 PP-1 AC-02 TSC-PWR MTR-2-PWR PP-1 GRADE A TSC MTR-2-CAT5 TSC-PWR MTR-2-PWR MTR-2-RC MTR-1-CAT5 TSC-CAT5 ARM-RS SHUNT AC-02 PAD MOUNTED EQUIPMENT ELEVATION 1/4" = 1'-0" .. .... REV DESCRIPTION DATE BY CK APP NYSEG- WASTE WATER TREATMENT PLAN 525 THIRD ST. ITHACA, NY 14853, US AVANGRID ENGINEERING CONFIDENTIAL, PROPRIETARY and TRADE SECRET INFORMATION Property of AVANGRID, Inc. NYSEG AVANGRID - - - - - - 0 ISSUE FOR CONSTRUCTION 07/XX/2019 - - - REV DESCRIPTION DATE BY CK APP . . . . FILE: 4367-0002-002 SH 01.DWG ANSI D LOGO INFO
|